Pound Ridge Residence, 2024
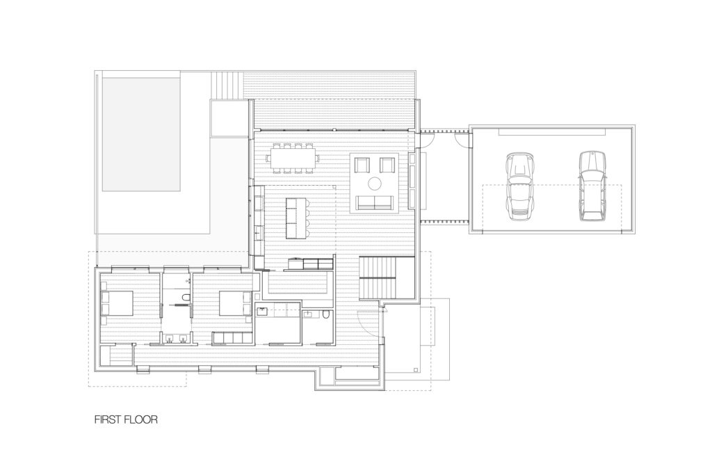
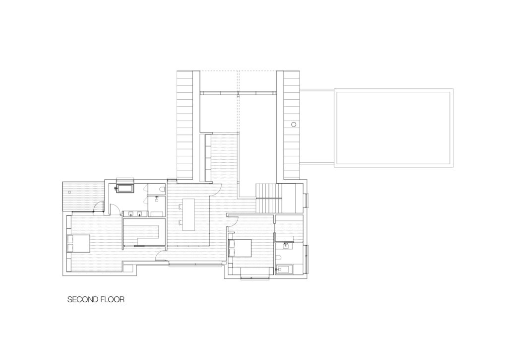
With John Bermudez. Located on the Mianus River Gorge in Pound Ridge, NY, this 4,500 square foot single-family residence has a direct connection to 935 acres of nature conservancy. Cantilevered and carved, the mass is a composition of modern and rural forms. It is situated in the landscape to take advantage of the earth’s slope, with the entry on the upper level and the walk-out basement on the lower.



The first floor provides a clear distinction between public and private spaces, while the second floor blends office, library, bedroom and master suite. The living room celebrates nature with a two-story glass wall and an abundance of north light.


